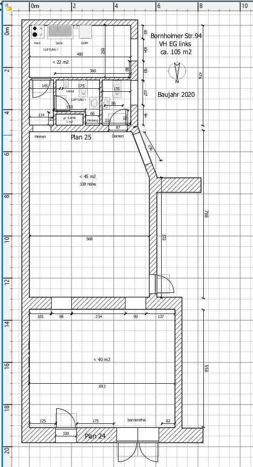
Bornholmer94eg2020Plan25  Bauskizzen 2020