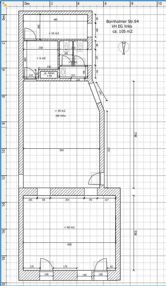
Bauskizzen 2020