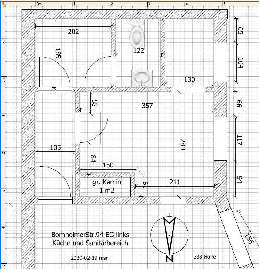
Bauskizzen